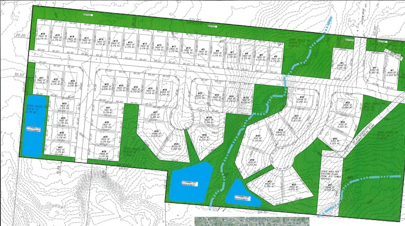
Located east of I-675, west of Grange Hall Road and just south of Rushton Drive, the development includes a mix of one-and two-story ranch-style homes, planned at between 1,500 and 2,000 square feet.
The homes will be priced between $450,000 and $500,000, according to Brian Hoesl, land acquisition manager for Maronda Homes. Sale prices for homes in surrounding subdivisions in the last two years were around $250,000, according to city documents.
Beavercreek’s planning commission approved the rezoning, with conditions that “special attention” be paid to traffic impacts along two roads that would provide access to the subdivision — Vayview Drive and Graham Drive. Planning commission also called for attention regarding impacts to the Greene County water and sewer system.
A cell tower is also located on the property.
Residents have previously raised concerns about the development, including possible traffic impacts to the neighboring subdivisions along Vayview Drive and Graham Drive. Additionally, residents raised concerns about impacts to county water and sewer lines, which are located near the property.
Greene County Sanitary Engineering is in the process of eliminating two outdated lift stations, at Planeview Drive and Murwood Court in Beavercreek, and entirely replacing the lift station at Vayview Drive, as part of plans to upgrade the county’s water facilities.
The rezoning now goes to Beavercreek City Council, after which the developer will begin the process of developing a specific site plan for the subdivision.
Maronda Homes also has developments in Springboro, Liberty Twp., and Lebanon, with others under construction in Huber Heights and Troy.
About the Author

